P

产品

roduct

>> 当前位置:  网站买球(中国) - 产品
产品特长

- 金属外壳

- 宽电压输入 100-242V

- 50,000小时寿命

- 主动式功率因素校正

- SDali2.0 及 PWM调光

- 100% 老化试验

- 过电压/短路保护

- 符合RoHS要求


产品编码方式

Model Input voltage Output current Output voltage Output power Specification download
EMD014-C070-0E 100-242V 0.7A 5-20V 3.5-14W
EMD020-C050-0E 100-242V 0.7A 5-40V 3.5-20W
调光特性

优良的调光效果

精心设计的调光曲线,可以用调光器关掉输出。

- 0%, 0.1% - 100%

- 可切换Dali 及 PWM调光模式



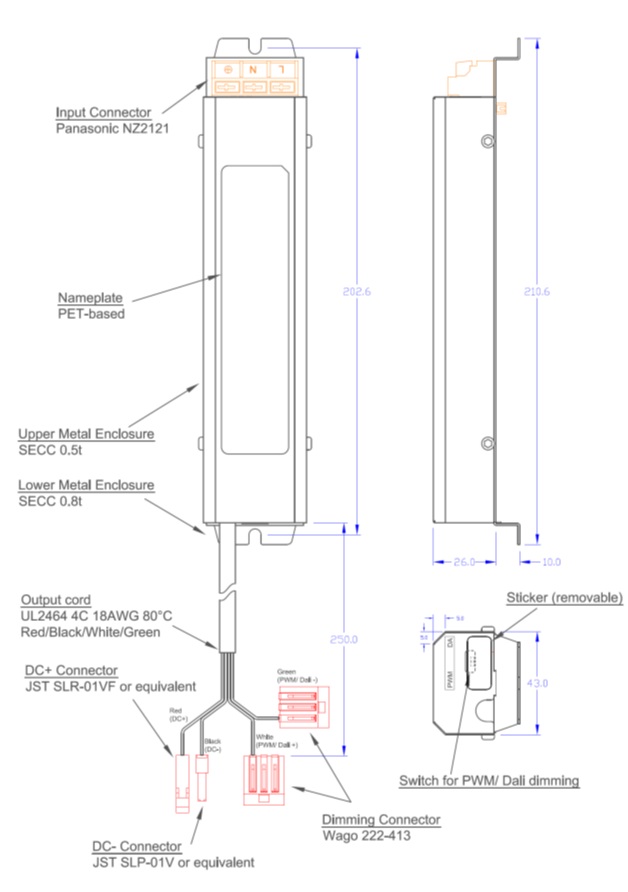
产品结构

- SECC 外壳,耐用

- 台阶式设计,有效避免LED灯的热量传给LED电源。

- WAGO/ Panasonic 输入端子台,可以自由并联,安装容易。

- WAGO 调光端子,可自由并联。

- JST 输出端子,安全可靠。